Geförderte Mietwohnung in Radmer



Code:
WGE44379
Straße:
Radmer an der Stube 42 d
Ort:
8795 Radmer
aktuell seit/ab:
30.11.-0001
Verfügbarkeit:
Miete

    Standort:
Beschreibung:

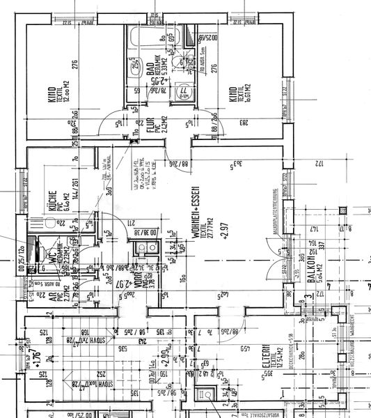
Freundliche 4-Zimmer-Wohnung im 1. Obergeschoß mit Balkon und PKW-Abstellplatz.
Wohnunterstützung möglich!
Bei der angegebenen Miete wurde ein monatlicher Zuschuss in der Höhe von € 150,00 abgezogen. Ein neues Zuhause einzurichten ist auch mit finanziellem Aufwand verbunden. Die Siedlungsgenossenschaft ENNSTAL unterstützt Sie beim Start und fördert diese Wohnung – bei einem Kündigungsverzicht von 24 Monaten - im ersten Jahr mit einem nicht rückzahlbaren monatlichen Zuschuss!
Vorhandene Räume: 2x Kinderzimmer, Abstellplatz, Abstellraum, Bad, Balkon, Flur, Kellerabteil, Küche, Schlafzimmer, Vorraum, WC, Wohn/Esszimmer
Zuschuss: EUR 150.00
4 Zimmer, 1 Badezimmer, 1 WC, 1 Balkon/Terrasse, Keller


Wohnfläche:
85m²
Räume:
4
Baujahr:
1995
Zustand:
ohne Angabe
Energieeffizienz - Faktor fGEE
1.00

Miete:
EUR 730,35
Kaution:
EUR 2.186,70

Kontakt

Gem. Wohn- u. Siedlungsgen. ennstal Lisa Kalsberger
Siedlungsstraße 2
8940 Liezen
+43 3612 273 269
lisa.kalsberger@wohnbaugruppe.at
www.wohnbaugruppe.at